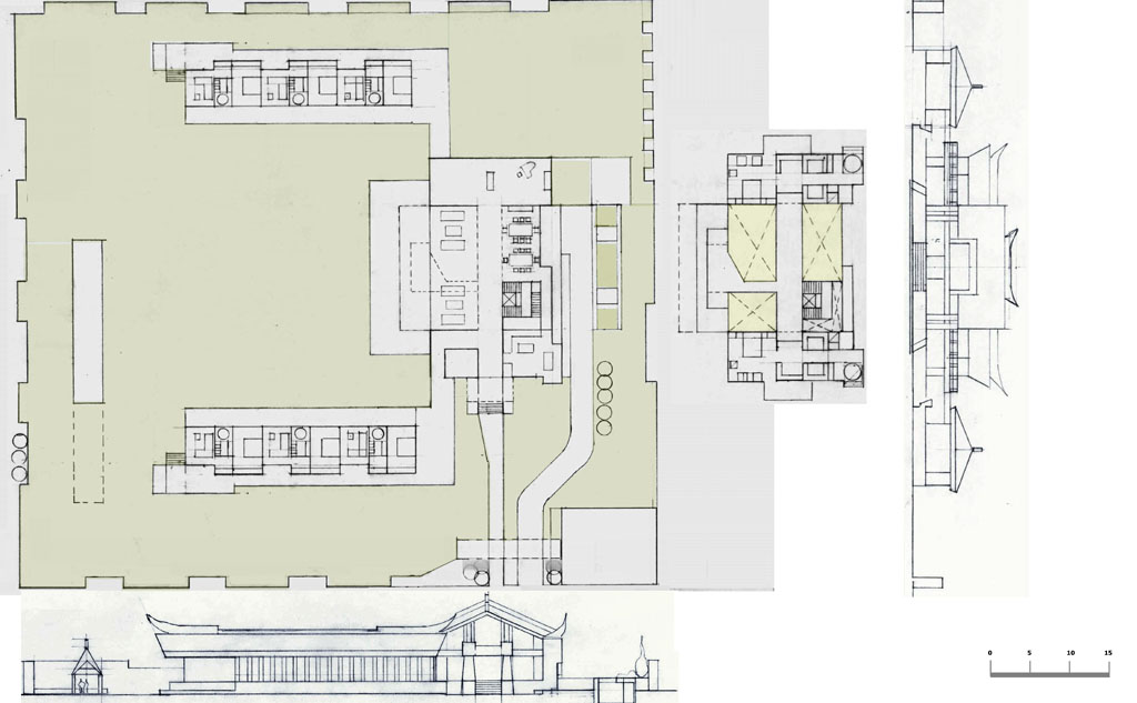
1200 M2 Mansion in Xinzhou – Wuhan City (China)

IN COLLABORATION WITH  EDFA DESIGN  GROUP (SHENZHEN – CHINA – under construction)

This project is for a Premium client of EDFA GROUP , a big and rich family compound by two brothers who are heads of this family, their wives and sons and many grandchildren.

The clients wanted a merging architectural style  between  Chinese tradition  and contemporary  western design

The total area involved is 1.200  M2